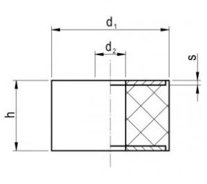
Втулка резиновая GH амортизатор. Резина – натуральный каучук, закладная шайба – оцинкованная сталь. Температура применения от -40°С до +80°С.

| Наименование, d1/d2-h | Диаметр d1, мм | Диаметр d2, мм | Высота h, мм | Толщина s, мм |
|---|---|---|---|---|
| GH 30/11-15 | 30 | 11 | 15 | 2 |
| GH 30/10.5-30 | 30 | 10.5 | 30 | 2 |
| GH 30/13-30 | 30 | 13 | 30 | 2 |
| GH 35/13-20 | 40 | 13 | 20 | 2 |
| GH 40/13-15 | 40 | 13 | 15 | 2 |
| GH 40/10-20 | 40 | 10 | 20 | 2 |
| GH 40/13-20 | 40 | 13 | 20 | 2 |
| GH 40/13-30 | 40 | 13 | 30 | 2 |
| GH 40/13-35 | 40 | 13 | 35 | 2 |
| GH 40/13-40 | 40 | 13 | 40 | 2 |
| GH 50/21-15 | 50 | 21 | 15 | 2 |
| GH 50/17-20 | 50 | 17 | 20 | 2 |
| GH 50/21-20 | 50 | 21 | 20 | 2 |
| GH 50/11-25 | 50 | 11 | 25 | 2 |
| GH 50/13-25 | 50 | 13 | 25 | 2 |
| GH 50/10-30 | 50 | 10 | 30 | 2 |
| GH 50/21-30 | 50 | 21 | 30 | 2 |
| GH 50/17-40 | 50 | 17 | 40 | 2 |
| GH 50/17-50 | 50 | 17 | 50 | 2 |
| GH 50/21-50 | 50 | 21 | 50 | 2 |
| GH 60/10.5-30 | 60 | 10.5 | 30 | 2 |
| GH 60/18-30 | 60 | 18 | 30 | 2 |
| GH 60/21.5-30 | 60 | 21.5 | 30 | 2 |
| GH 60/21-35 | 60 | 21 | 35 | 2 |
| GH 60/21-50 | 60 | 21 | 50 | 2 |
| GH 75/25-40 | 75 | 25 | 40 | 3 |
| GH 75/25-55 | 75 | 25 | 55 | 3 |





